Virtual Tour
∎
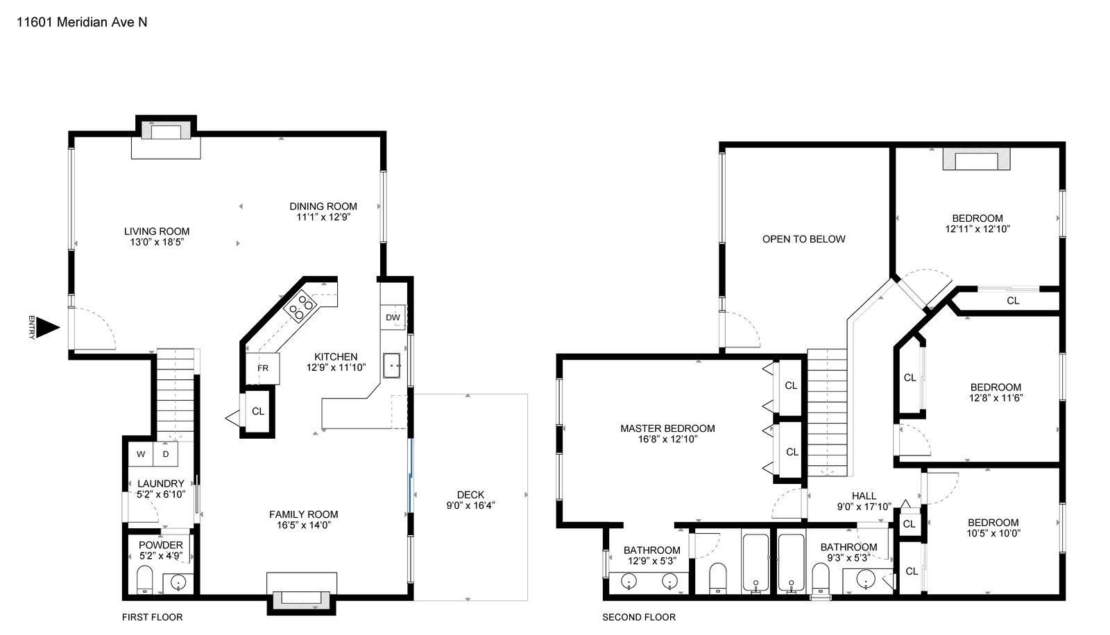
Floor Plans
Amenities
∎
- Quiet and Private
- Shopping Nearby
- Side-by-Side Washer and Dryer
- Stainless Steel Appliances
- Open Floor Plan
- High Ceilings
- Large Lot
- Close To Everything
- Hospital Access
- Hospital Grid
- Great for Commuting
- Light Rail
- Walkable Location
listing
Presented By
∎
connect
Get in Touch
∎
11601 Meridian Ave N
Seattle, WA 98133













